 |
|
|
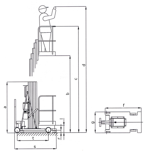
type
|
cap
|
a
|
b
|
c
|
d
|
e
|
f
|
g
|
h1
|
h2
|
k
|
l
|
m
|
n
|
q
|
poids
|
|
PH
760
|
160
|
2300
|
5554
|
6654
|
7554
|
1840
|
1280
|
770
|
1410
|
1350
|
1390
|
340
|
150
|
1260
|
2350
|
207
|
|
PH
900
|
160
|
2300
|
7294
|
8394
|
9294
|
1890
|
1280
|
770
|
1530
|
1470
|
1500
|
340
|
150
|
1320
|
2350
|
305
|
|
PH
1100
|
150
|
2300
|
9034
|
10134
|
11034
|
1930
|
1280
|
770
|
1810
|
1730
|
1750
|
340
|
210
|
1380
|
2350
|
340
|
|
PH
1200
|
150
|
2300
|
10094
|
11194
|
12094
|
1980
|
1280
|
770
|
2180
|
2080
|
2070
|
1392
|
360
|
1380
|
2350
|
360
|
|
PH
1300
|
135
|
2300
|
10774
|
11874
|
12774
|
1980
|
1380
|
770
|
2180
|
2080
|
2170
|
340
|
400
|
1440
|
2400
|
380
|
|
PH
1400
|
115
|
27
70
|
12034
|
13134
|
14034
|
1950
|
1380
|
770
|
2290
|
2180
|
2260
|
340
|
450
|
1440
|
2850
|
430
|
|
PHC
650
|
160
|
1980
|
4594
|
5694
|
6594
|
-
|
1280
|
770
|
1250
|
1210
|
1260
|
340
|
90
|
1260
|
-
|
250
|
|
PHC
800
|
160
|
1980
|
6014
|
7114
|
8014
|
-
|
1280
|
770
|
1410
|
1350
|
1390
|
340
|
100
|
1320
|
-
|
275
|
|
PHC
940
|
160
|
1980
|
7434
|
8534
|
9434
|
-
|
1280
|
770
|
1530
|
1470
|
1500
|
340
|
90
|
1380
|
-
|
300
|
|
PHC
1100
|
150
|
1980
|
8854
|
9954
|
10854
|
-
|
1380
|
770
|
1740
|
1660
|
1780
|
340
|
210
|
1440
|
-
|
330
|
|
PHC
1200
|
135
|
1980
|
9914
|
11014
|
11914
|
-
|
1380
|
770
|
2040
|
1950
|
2050
|
1392
|
340
|
1440
|
-
|
345
|
|
PHI
760
|
160
|
2300
|
5554
|
6654
|
7554
|
1840
|
1280
|
770
|
1250
|
1210
|
1260
|
340
|
90
|
1260
|
2350
|
354
|
|
PHI
900
|
160
|
2300
|
7294
|
8394
|
9294
|
1890
|
1280
|
770
|
1250
|
1210
|
1260
|
340
|
30
|
1320
|
2350
|
389
|
|
PHI
1100
|
150
|
2300
|
9034
|
10134
|
11034
|
1930
|
1280
|
770
|
1530
|
1470
|
1500
|
340
|
90
|
1380
|
2350
|
424
|
|
PHI
1200
|
150
|
2300
|
10094
|
11194
|
12094
|
1980
|
1280
|
770
|
1810
|
1730
|
1750
|
1392
|
210
|
1380
|
2350
|
444
|
|
PHI
1300
|
135
|
2300
|
10774
|
11874
|
12774
|
1980
|
1380
|
770
|
1810
|
1730
|
1850
|
340
|
250
|
1440
|
2400
|
464
|
|
PHI
1400
|
115
|
2770
|
12034
|
13134
|
14034
|
1950
|
1380
|
770
|
2040
|
1950
|
2050
|
340
|
340
|
1440
|
2850
|
514
|
|
PHCI
650
|
160
|
1980
|
4594
|
5694
|
6594
|
-
|
1280
|
770
|
1250
|
1210
|
1260
|
340
|
90
|
1260
|
-
|
294
|
|
PHCI
800
|
160
|
1980
|
6014
|
7114
|
8014
|
-
|
1280
|
770
|
1250
|
1210
|
1260
|
340
|
30
|
1320
|
-
|
359
|
|
PHCI
940
|
160
|
1980
|
7434
|
8534
|
9434
|
-
|
1280
|
770
|
1250
|
1210
|
1260
|
340
|
30
|
1380
|
-
|
384
|
|
PHCI
1100
|
150
|
1980
|
8854
|
9954
|
10854
|
-
|
1380
|
770
|
1410
|
1350
|
1490
|
340
|
80
|
1440
|
-
|
414
|
|
PHCI
1200
|
135
|
1980
|
9914
|
11014
|
11914
|
-
|
1380
|
770
|
1610
|
1540
|
1670
|
1392
|
160
|
1440
|
-
|
429 |
| poids en kg, dimensions en mm |
|
| |
Pour
une version imprimable de cette information, cliquez ici.
(358 kB)
|
| |
|
| |
Vous
pouvez télécharger le manuel d'utilisation ici.
(2.8 kB)
|
|
|
|
type
|
cap
|
a
|
b
|
c
|
d
|
f
|
g
|
l
|
r
|
s
|
t(min) |
poids
|
PHCHI
650
|
160
|
1950
|
4500
|
5500
|
6500 |
1370
|
790 |
320
|
105-125 |
1610 |
1180
|
675 |
PHCHI
800
|
160
|
1950
|
6000
|
7000
|
8000 |
1370
|
790 |
320
|
105-125 |
1610 |
1180
|
695 |
PHCHI
940
|
160
|
1950
|
7390
|
8490
|
9390 |
1370
|
790 |
320
|
105-125 |
1610 |
1180
|
715 |
|
PHCHI
1100
|
150
|
1950
|
8810
|
9910
|
10810 |
1430
|
890 |
320
|
105-125 |
1670 |
1180
|
825 |
|
|
poids
en kg, dimensions en mm |
|
|
Pour
une version imprimable de cette information, cliquez ici.
(139 kB)
|
|
|
|
|